オフィス・店舗詳細

Officeオフィス・店舗詳細

THE PLAMS与野

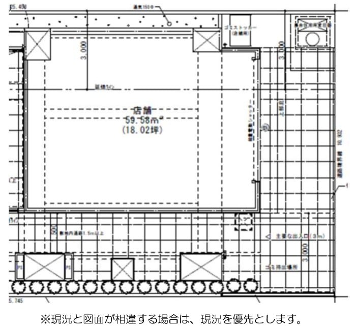
物件概要

所在地 埼玉県さいたま市中央区下落合1024-1
アクセス
    JR京浜東北線「与野」駅 徒歩4分
構造 RC造10階建て
竣工 2026年2月25日(予定)
設備 都市ガス/天井換気扇(24H)2台
取引態様 代理
情報公開日:2026/02/25 次回更新予定日:2026/03/25

Contactお問い合わせ

0570-025-352

受付時間:9:00 ~ 17:00(土、日、祝、特定日を除く)

フォームからのお問い合わせ

トーセイグループ
トーセイグループ

  • トーセイ株式会社
  • トーセイ・アセット・アドバイザーズ株式会社
  • トーセイ・リート投資法人
トップページ > 賃貸物件情報 > オフィス・店舗 > 埼玉県 > THE PLAMS与野